Topaz
Home Plan
Description
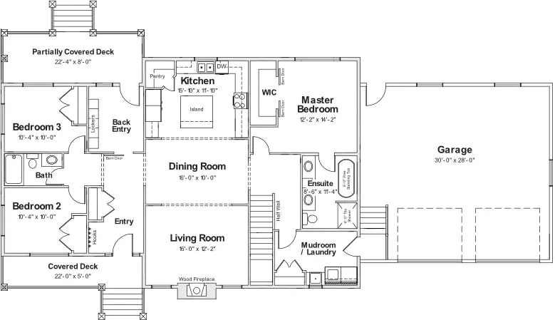
Experience your dream kitchen! U-shaped kitchen for added space and storage. Kitchen, dining and living space perfect for entertaining.
Love the Topaz but want a design change? All our home plans are fully customizable to suit your taste and lifestyle, ensuring your home is just the way you want it.
Specifications
- 1826 sq. ft.
- 3 Bedrooms
- 2 Bathrooms
Floorplan
Love this home? Let us know.
Book a consultation